Commercial unit for sale at Kubánské square

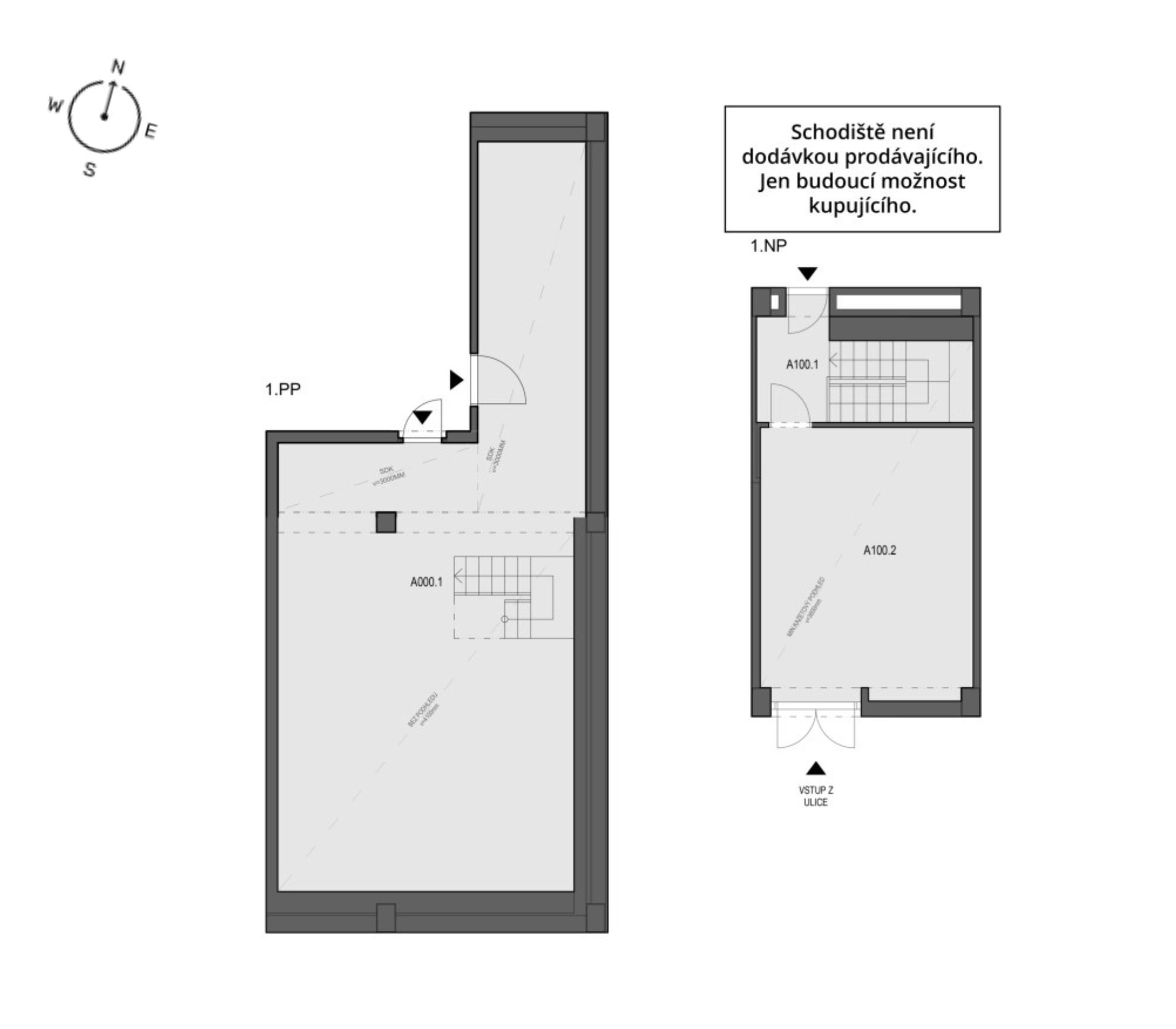
In the Moje Kubáň project in Prague 10 – Vršovice, we offer the last available commercial unit for sale. The unit is located on the ground floor of a residential building and has nearly 112 m² of space, a separate entrance, and a display window facing Kubánské square.
The space is suitable for opening, for example, a cafe with a bakery, a wine bar, or a barbershop. The unit is immediately available and will be handed over to the new owner in SHELL & CORE condition, allowing for customization of the layout and interior according to personal needs and planned business.
Excellent location with high foot traffic and easy public transport access makes this offer attractive for entrepreneurs looking for a space in a busy and promising area.
For more information or to arrange a viewing, contact our sales representative at 840 400 440 or info@gartal.cz.










