City Lofts Chodov
Praha 4 - Chodov
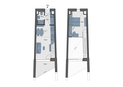
Byt 716
- 2 + kk
- 43.30 m²
- 6. NP
V prodeji
8 832 996 Kč vč. DPH
7 886 603 Kč bez DPH
716.01
Předsíň
4 m²
716.02
Koupelna
2.5 m²
716.03
Obývací pokoj + kk
20.6 m²
716.04
Galerie (vč. rozšíření)
14.1 m²
Vnitřní užitná plocha
41.2 m²
Celková podlahová plocha
43.3 m²
Celková výměra bytu k užívání
43.3 m²
716.05
Lodžie
8.5 m²
Parkovací stání
Parkovací místa nejsou součástí ceny nemovitosti.1
Výhody
Galerie
Financování
195 000
Kč vč. DPH
Rezervační poplatek po uzavření Rezervační smlouvy
15%
ceny bytu vč. DPH
Po uzavření Smlouvy o smlouvě budoucí kupní

Průběh výstavby rezidenčního projektu
70%
ceny bytu vč. DPH
Po dokončení výstavby a získání kolaudačního souhlasu
15%
ceny bytu vč. DPH
Po podpisu kupní smlouvy minus rezervační poplatek 195 000 Kč
Hypotéka
Netrapte se vyřizováním hypotéky sami. Najdeme vám tu nejlepší s co nejnižší úrokovou sazbou a budeme za vás komunikovat s bankou, odhadcem i katastrem nemovitostí.
Měsíční splátka
27 029 Kč












